Lägenhet till salu i Calpe (CALP0091_2)

Såld

Ett unikt hem vid havet i Calpe

Ref. CALP0091_2
Calpe, Alicante View Map

Grundläggande funktioner

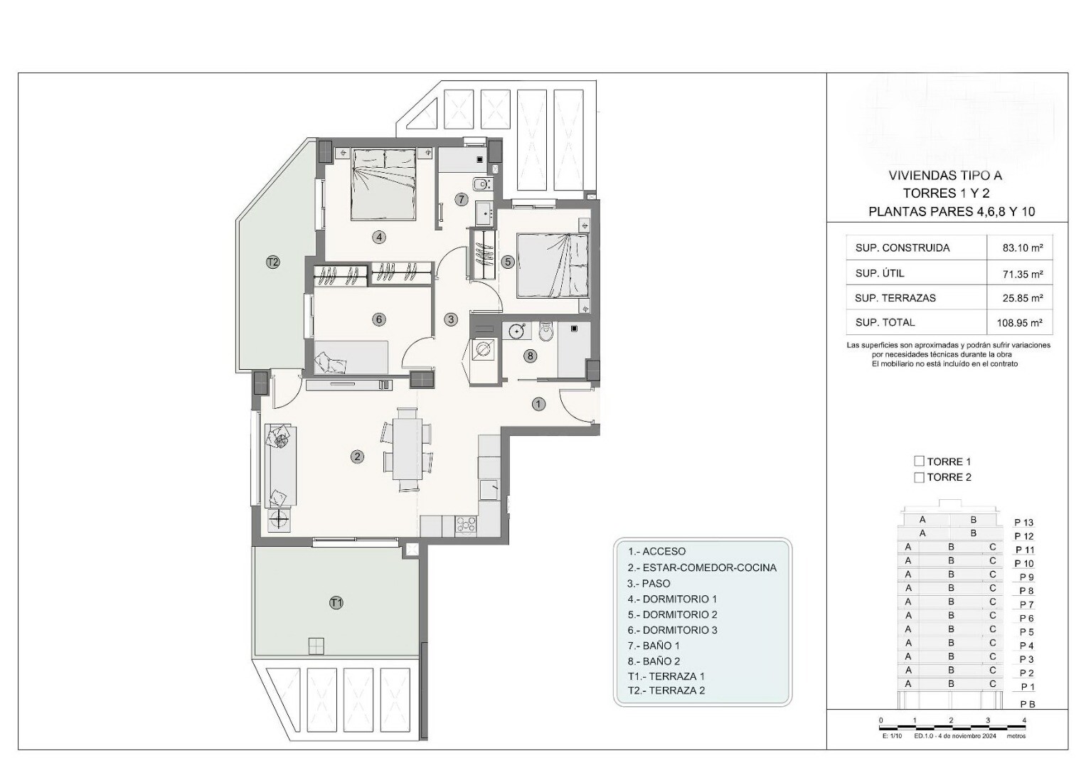
m<sup>2</sup> fastighet
109 m2 fastighet
sovrum
3 sovrum
Badrum
2 Badrum
Avstånd till havet
Strand 300 m bort
Garage / Parkering
Garage / Parkering
Terrasser
26 m² terrass
Gemensam pool
Trädgård
Hiss
Vitvaror
Luftkonditionering
Garderober
Dubbla glasrutor

Beskrivning

Vill du ha mer information? Mindre information
Unikt bostadsprojekt med doft av hav, där att bo på stranden är en dröm som går i uppfyllelse. Vi har lägenheter och takvåningar med 2 och 3 sovrum, speciellt designade för att du ska kunna njuta av ditt unika sätt att leva.
Dessa ljusa hus är i harmoni med naturen och erbjuder stora terrasser och havsutsikt. Det är den idealiska platsen att njuta ...

Läge

Calpe, Alicante
Är du intresserad av den här fastigheten och vill ha mer information?

Vad erbjuder detta område?

Vill du ha mer information?
Det finns 18 personer som tittar på denna fastighet