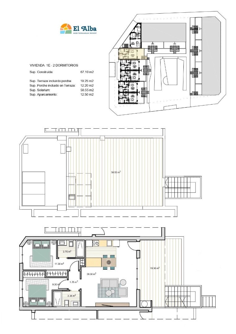
Om du letar efter ett utrymme utformat för att njuta av varje ögonblick, erbjuder denna residens exklusiva lägenheter som passar alla livsstilar. Den ligger i Roldán, Murcia, i den exklusiva El Alba Mediterranean Resort, ett gated community med säkerhet som kombinerar lugn, design och komfort. Lägenheter med 2 och 3 sovrum och 2 badrum finns tillgä...ngliga, med rymliga terrasser på bottenvåningen och ett privat solarium på övervåningen, perfekt för att koppla av under Murcias sol. De eleganta och funktionella interiörerna har fullt utrustade kök, inklusive vitvaror. Exteriören är lika imponerande, med en gemensam pool, en vacker sportplan och en lekplats på konstgräs för gästerna att njuta av. Dessutom har husen förinstallerad luftkonditionering. Detta komplex ligger nära stranden, parker, flera golfbanor och alla bekvämligheter, såsom La Palapa, inom komplexet, som ståtar med en sandstrand, paddeltennisbanor, en bowlinghall och en mycket trevlig restaurang.
Alba Resort ligger i Roldán, en lugn by i hjärtat av Murcia-regionen, även känd som Costa Cálida. Detta gör det till en utmärkt bas för att utforska både kusten och den rika landsbygden i inlandet. Omgivningarna erbjuder avkoppling och ett brett utbud av aktiviteter. Närområdet är ett paradis för golfare, med toppbanor som den anlagda La Torre Golf Resort och Mar Menor Golf Resort. Dessutom är regionen omgiven av vidsträckta fruktträdgårdar, perfekta för avkopplande promenader eller cykelturer genom det lantliga landskapet. Mar Menors kust, Europas största saltvattenlagun, ligger bara en kort bilresa bort. Här kan du njuta av stränder med grunt och varmt vatten, som de vid Los Alcázares. En unik rekommendation är ett besök i de terapeutiska lerbaden i Lo Pagán och det skyddade naturreservatet Salinas de San Pedro del Pinatar, där du har chans att se flamingos. Kulturella och historiska rikedomar finns i de närliggande städerna:
* Hamnstaden Cartagena (ca 30 minuter) imponerar med sin tvåtusenåriga historia. Den romerska teatern är ett absolut måste att se.
* Huvudstaden Murcia City (ca 35 minuter) erbjuder barockprakt, med höjdpunkter som den imponerande katedralen och det överdådigt dekorerade Real Casino.
Från Alba Resort i Roldán hittar du den perfekta blandningen av spansk sol, sportig avkoppling och en rik kultur inom bekvämt räckhåll.
Flygplatserna i Murcia och Alicante ligger cirka 20 minuter från Murcia respektive 1 timme och 20 minuter från Alicante.