Belägen i en exklusiv och lugn bostadsenklav i Alfaz del Pi, erbjuder denna eleganta villa ett raffinerat medelhavsliv, som kombinerar generösa volymer, avskildhet och tidlös design.
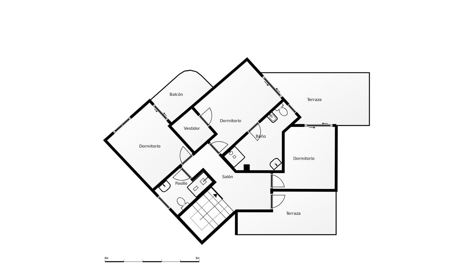
Residensen består av fyra rymliga sovrum och tre badrum. Master-sviten är en privat tillflyktsort med ett eget badrum och en specialdesignad klädkammare. Ett sovrum p...å bottenvåningen erbjuder exceptionell bekvämlighet, perfekt för gäster eller flergenerationsboende.
Det stora vardagsrummet och matsalen badar i naturligt ljus och öppnar harmoniskt mot ett fullt utrustat separat kök, kompletterat av en separat tvättstuga. Interiörplanen har noggrant utformats för att kombinera komfort, funktionalitet och diskret sofistikering.
Utomhusområdena, som upptar en 850 m² stor tomt, är skräddarsydda för en exceptionell livsstil under medelhavssolen. Fastigheten har en privat pool, ett fullt utrustat sommarkök, rekreationsområden och generösa terrasser med öppen panoramautsikt – perfekt för underhållning eller avkopplande utomhusliv.
Ett rejält garage med plats för minst fem fordon ger ytterligare värde och ger möjlighet att omvandlas till en oberoende gästlägenhet eller personalboende.
Bland anmärkningsvärda funktioner finns:
Oljedriven radiatoruppvärmning
Varm och kall luftkonditionering i hela huset
Högkvalitativa PVC-fönster med lutning och vridfunktion
Denna framstående villa, som presenteras i oklanderligt skick, är idealisk som primärbostad eller exklusivt andra hem på Costa Blanca, och tilltalar internationella köpare som söker avskildhet, utrymme och ett raffinerat kustliv.