Vi presenterar Villa Alba, en exklusiv villa i modern design belägen i ett bostadsområde i Altea på den eftertraktade Costa Blanca-nordkusten.
Designad för kräsna köpare som värdesätter modern arkitektur, avskildhet och spektakulär utsikt över Medelhavet, erbjuder denna eleganta fastighet den perfekta balansen mellan komfort, stil och funktionalite...t.
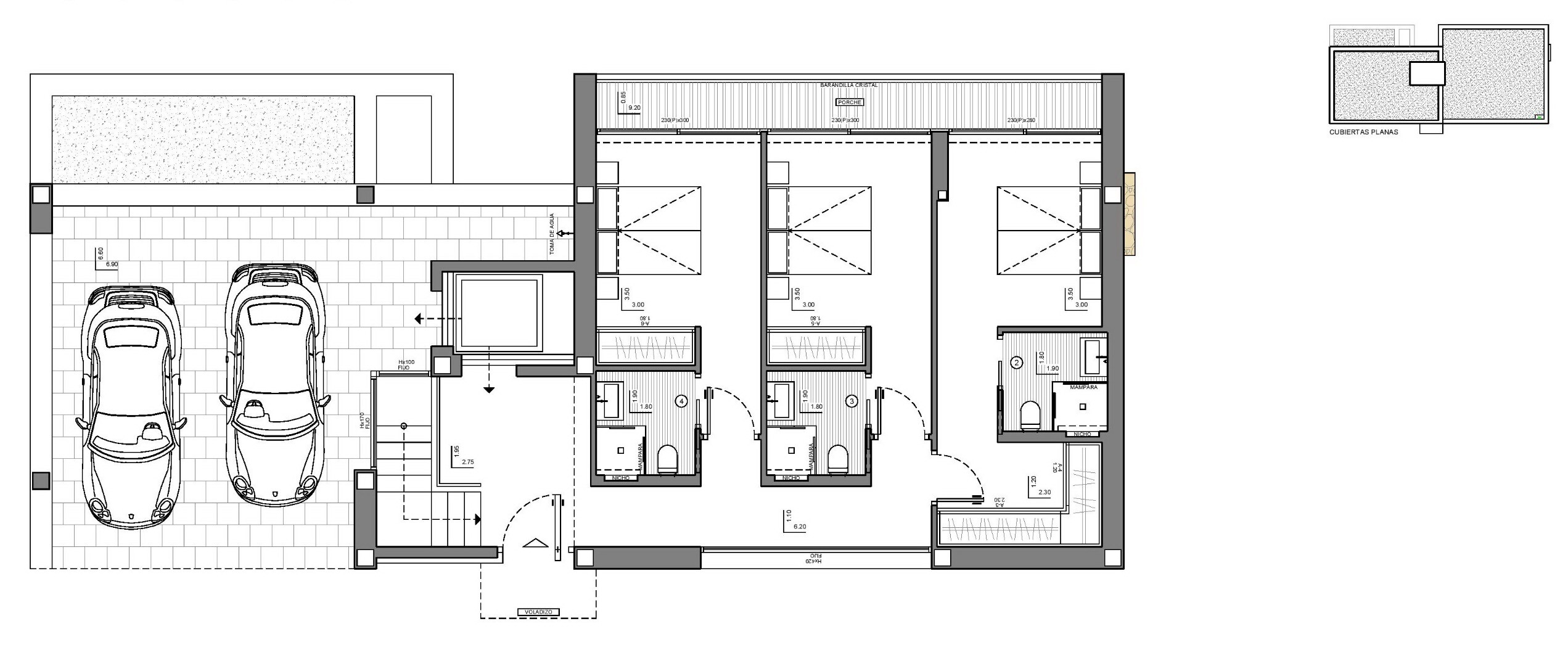
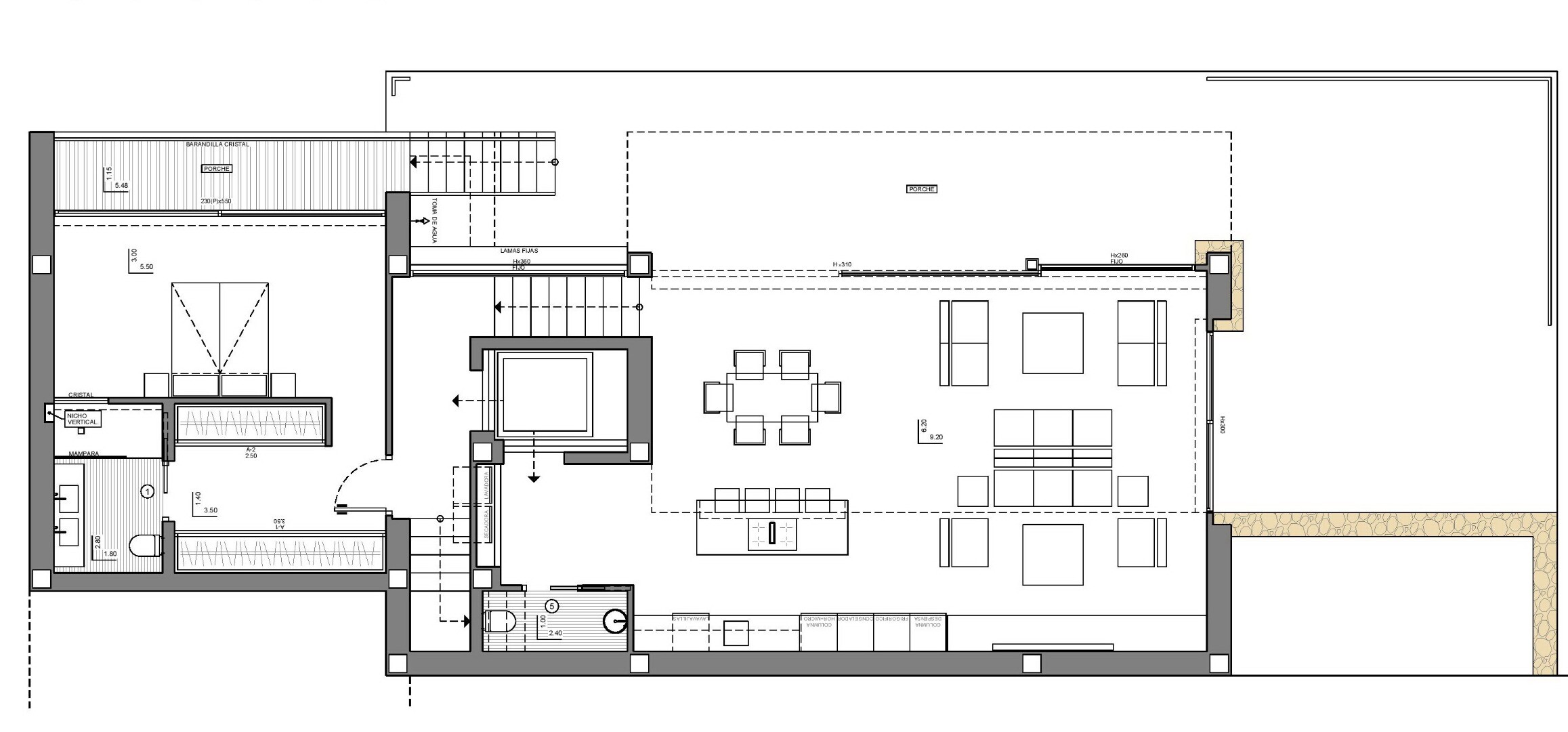
Villan är fördelad på två noggrant utformade våningar och har fyra rymliga sovrum, alla med eget badrum, ett ljust vardagsrum och matsal i öppen planlösning med ett fullt integrerat modernt kök och en fantastisk huvudterrass med infinitypool, som sömlöst blandar inomhus- och utomhusliv med panoramautsikt över havet.
Alla huvudsakliga bostadsutrymmen är sydostorienterade mot havet och har direkt tillgång till utomhusterrasser, vilket maximerar naturligt ljus och kontakt med Medelhavsomgivningarna.
Fastigheten inkluderar också ett täckt garage för två fordon med förinstallation för en laddningsstation för elbilar, tillsammans med aerotermisk klimatkontroll, hemautomationssystem och solpaneler, vilket säkerställer hög energieffektivitet, hållbarhet och komfort året runt.
Kärnan i Medelhavslivet
Altea är en av de charmigaste städerna på Costa Blanca, känd för sin pittoreska gamla stad med kullerstensgator och vitkalkade fasader med utsikt över Medelhavet.
Altea är mer än bara en destination, det representerar en livsstil. Här kan invånarna njuta av en unik kombination av hav, natur, gastronomi och kultur när den är som bäst.
Dess ikoniska vita hus och den internationellt erkända blåkupolskyrkan – en symbol för staden – är bara början på den skönhet som väntar runt varje hörn. Från fridfulla kustpromenader till livliga lokala restauranger, konstgallerier och traditionella marknader erbjuder Altea en autentisk medelhavsupplevelse året runt.