Villa till salu i Rojales för 724.000 € (ROJA0179)

Inflyttningsklar villa i Ciudad Quesada

724.000 €
Ref. ROJA0179
Rojales, Alicante View Map

Grundläggande funktioner

m<sup>2</sup> tomt
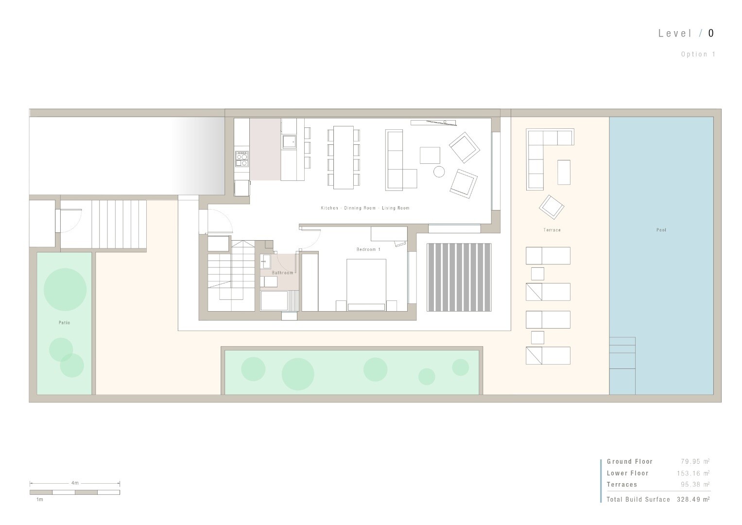
300 m2 tomt
m<sup>2</sup> fastighet
265 m2 fastighet
sovrum
4 sovrum
Badrum
3 Badrum
Avstånd till havet
Strand 6 km bort
Garage / Parkering
Garage / Parkering
Terrasser
95 m² terrass
Privat pool
Tvättstuga
Vitvaror
Luftkonditionering
Dubbla glasrutor

Beskrivning

Vill du ha mer information? Mindre information
Exceptionell designvilla fördelad på 2 våningar med privat pool och soliga terrasser med panoramautsikt. Vardagsrummet och köket har ett elegant neutralt färgschema, vilket skapar ljusa och luftiga utrymmen som smälter samman med uteterrassen och den stora 40m2 stora poolen. Villan har 4 sovrum, varav 1 på övervåningen och de övriga 3 sovrummen lig...

Läge

Rojales, Alicante
Är du intresserad av den här fastigheten och vill ha mer information?

Simulera din inteckning

Återstående ofinansierat pris
00,00 €
Ungefärliga kostnader:
00,00 €
Summa egna medel
00,00 €
Räntor på bolån
€/mes
Vill du ha mer information?
Det finns 20 personer som tittar på denna fastighet