Lägenhet till salu i El Verger för 341.000 € (ELVE6000-8)

Hållbart boende 500m från stranden

341.000 €
Ref. ELVE6000-8
El Verger, Alicante View Map

Grundläggande funktioner

m<sup>2</sup> fastighet
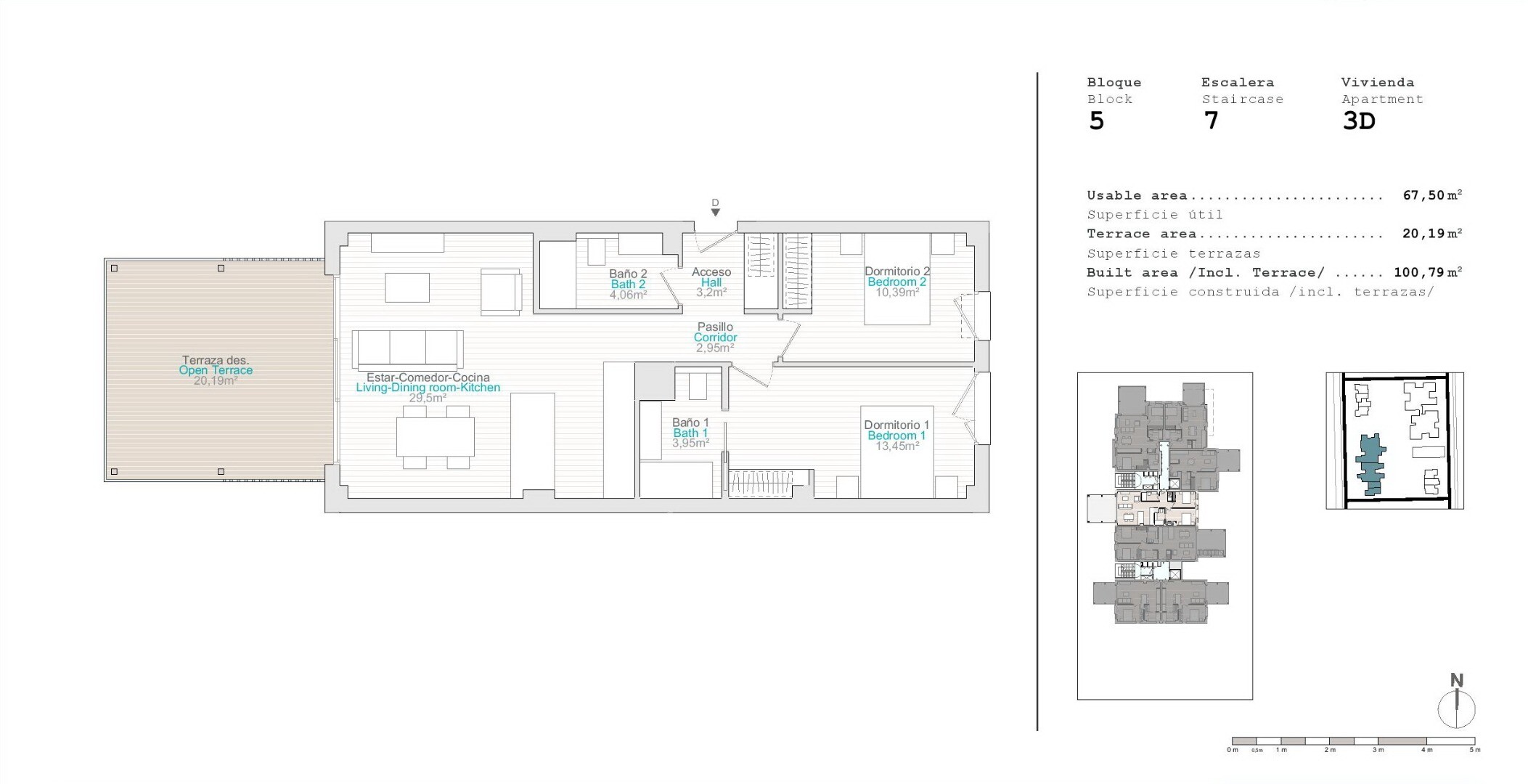
101 m2 fastighet
sovrum
2 sovrum
Badrum
2 Badrum
Avstånd till havet
Strand 500 m bort
Garage / Parkering
Garage / Parkering
Terrasser
20 m² terrass
Gemensam pool
Vitvaror
Luftkonditionering
Garderober
Dubbla glasrutor
Tennisbana
Lekplats
Gym
Bastu

Beskrivning

Vill du ha mer information? Mindre information
Ett svar på bostadsarkitekters och designers ständiga sökande efter effektivitet har väckt liv till denna fantastiska hållbara, energieffektiva urbanisering! En av huvuddragen i denna byggnad är utan tvekan deras stora terrasser. Med regelbunden dimension är de de idealiska utrymmena för att njuta av att leva utomhus. Föreningen av vardagsrummet me...

Läge

El Verger, Alicante
Är du intresserad av den här fastigheten och vill ha mer information?

Simulera din inteckning

Återstående ofinansierat pris
00,00 €
Ungefärliga kostnader:
00,00 €
Summa egna medel
00,00 €
Räntor på bolån
€/mes
Vill du ha mer information?
Det finns 47 personer som tittar på denna fastighet