Lägenhet till salu i San Miguel de Salinas (SANM0022-BJ)

Såld

Lägenhet i San Miguel de Salinas

Ref. SANM0022-BJ
San Miguel de Salinas, Alicante View Map

Grundläggande funktioner

m<sup>2</sup> tomt
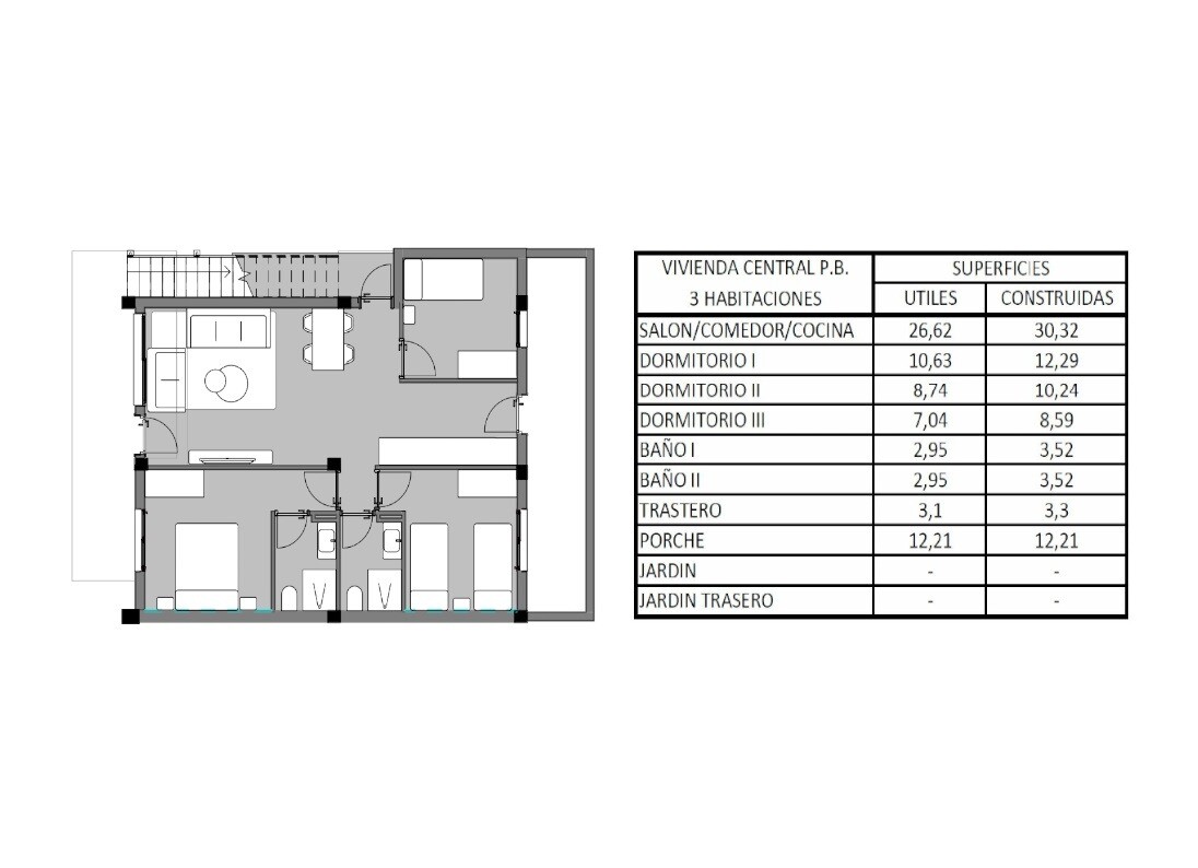
64 m2 tomt
m<sup>2</sup> fastighet
82 m2 fastighet
sovrum
3 sovrum
Badrum
2 Badrum
Avstånd till havet
Strand 10 km bort
Terrasser
13 m² terrass
Gemensam pool
Trädgård
Garderober
Dubbla glasrutor

Beskrivning

Vill du ha mer information? Mindre information
Lägenheterna på bottenvåningen kan fås som en 2- eller 3-rums planlösning. San Miguel de Salinas har god tillgång till Alicantes flygplats via AP-7. På 10 minuter med bil kan du välja mellan 5 golfbanor. Stranden och shoppingboulevarden La Zenia kan också nås på cirka 10 minuter. I San Miguel de Salinas har du alla tänkbara bekvämligheter, stormark...

Läge

San Miguel de Salinas, Alicante
Är du intresserad av den här fastigheten och vill ha mer information?
Vill du ha mer information?
Det finns 37 personer som tittar på denna fastighet