Radhus till salu i Gran Alacant för 280.000 € (AL04)

Bungalows med 1, 2 eller 3 sovrum, med 1 eller 2 badrum. Välj den bästa layouten för ditt hem och gör den perfekt för din familj. Gemensam pool och nära till alla tjänster.

280.000 €
Ref. AL04
Gran Alacant, Alicante View Map

Grundläggande funktioner

m<sup>2</sup> fastighet
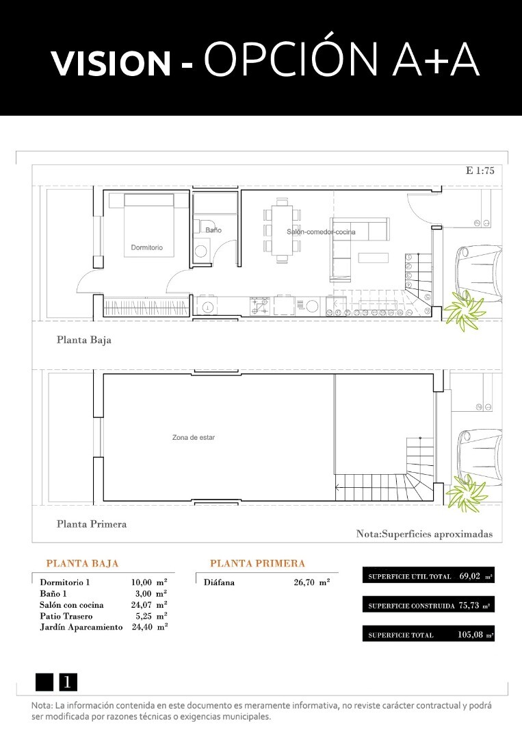
75 m2 fastighet
sovrum
2 sovrum
Badrum
1 Badrum
Avstånd till havet
Strand 3 km bort
Gemensam pool
Trädgård
Garderober
Dubbla glasrutor

Beskrivning

Vill du ha mer information? Mindre information
Vi presenterar ett hus i ett av de bästa områdena på Costa Blanca. Mycket nära Alicante och dess flygplats, stranden med blå flagg, stormarknader, barer, restauranger och många fler saker! De olika möjligheterna till interiördistribution ger mycket spel för alla behov av olika och olika familjer. Med ett trevligt gemensamt område, med pool, parkeri...

Läge

Gran Alacant, Alicante
Är du intresserad av den här fastigheten och vill ha mer information?

Simulera din inteckning

Återstående ofinansierat pris
00,00 €
Ungefärliga kostnader:
00,00 €
Summa egna medel
00,00 €
Räntor på bolån
€/mes
Vill du ha mer information?
Det finns 7 personer som tittar på denna fastighet