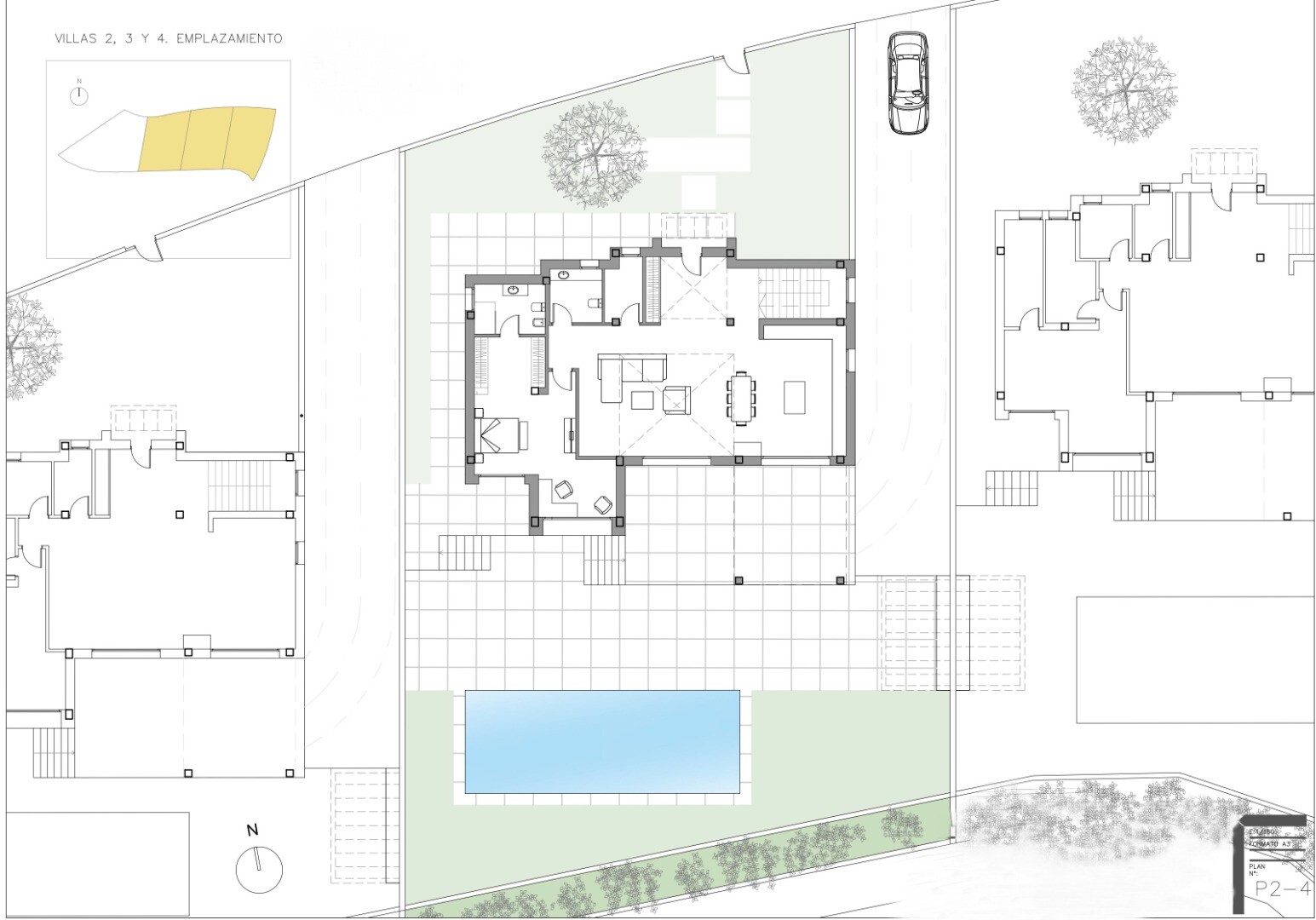
Nytt projekt med 3 villor i modern stil med havsutsikt, belägna i kommunen Finestrat (Alicante), omgiven av ett bergigt landskap och bara 5 minuter med bil från Benidorm.
Högkvalitativa material och exklusiva designerbeläggningar används i alla hem. Känslan inuti är mycket rymlig tack vare högt i tak och de stora fönstren mot havet. Den fria höjden... på våningarna är 2,80 m och det finns dubbelhöjda utrymmen i hall och vardagsrum.
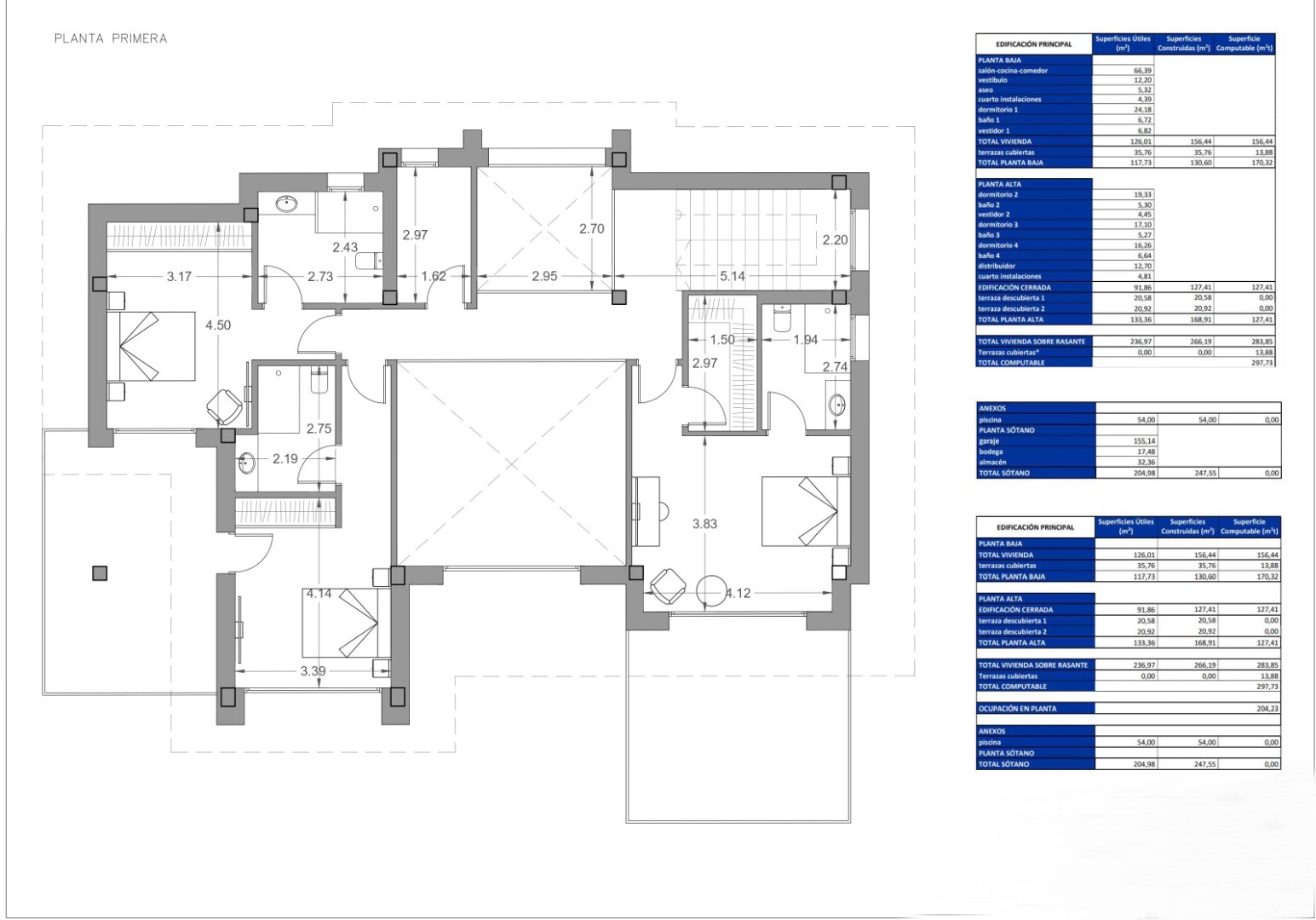
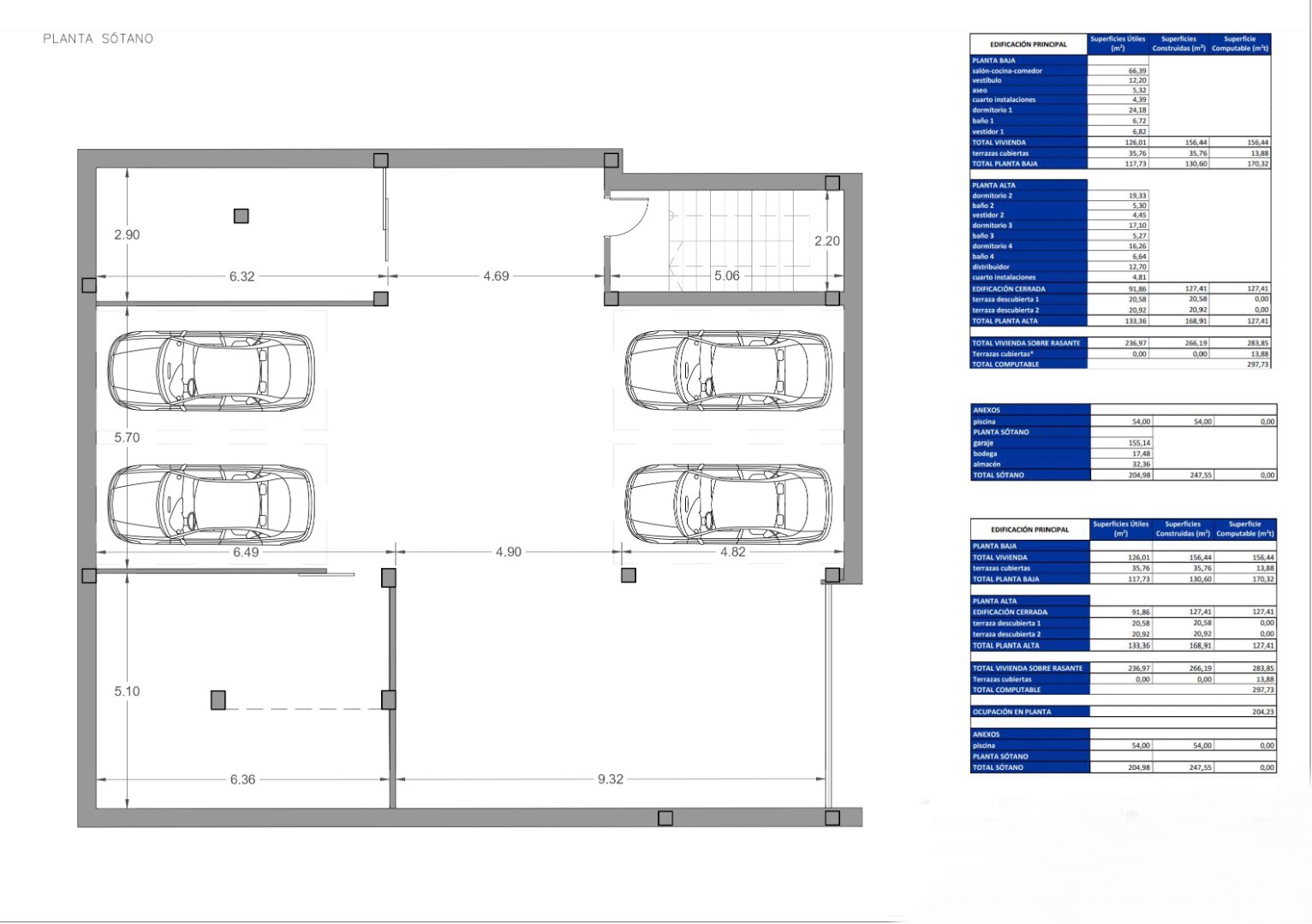
Den byggda ytan för varje villa är större än 550 m² och tomtytan är +/- 900 m² ungefär. Varje bostad har 300 m² på sina 2 högsta våningar, och även 1 halvkällarvåning på mer än 200 m2 som används som garage.
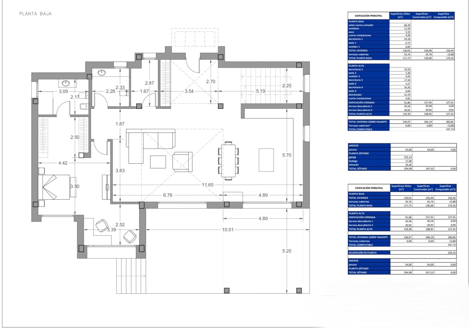
Villorna har 4 sovrum, 5 badrum, 2 tvättstugor och ett öppet vardagsrum-matsal-kök. Utanför finns en täckt veranda, en pool med havsutsikt, stora trädgårdsområden och 2 terrasser på första våningen.
Alla faciliteter är mycket effektiva. Energieffektiviteten i hemmet är mycket hög. Fasaden är gjord av Ytong-block. Trä och glas har låg värmeledningsförmåga. Den kanalförsedda luftkonditioneringsanläggningen har värmepump och det finns även golvvärme i hela huset, ventilationsanläggning med luftförnyelse och värmeåtervinningssystem. Hela huset har LED-belysning, både inne och ute.
Dessutom finns möjligheten för den framtida ägaren att personifiera sin bostad med tilläggstjänster.